Existing Projects
Stapler Design
Watch Packaging Design
House Design
Dining Experience in Space
Concept Sketches
Coffee Renders
Engineering Drawings
CAD Examples
Insulation Design
Mould Design
Ring Collections
Contact
Existing Projects
Stapler Design
Watch Packaging Design
House Design
Dining Experience in Space
Concept Sketches
Coffee Renders
Engineering Drawings
CAD Examples
Insulation Design
Mould Design
Ring Collections
Contact
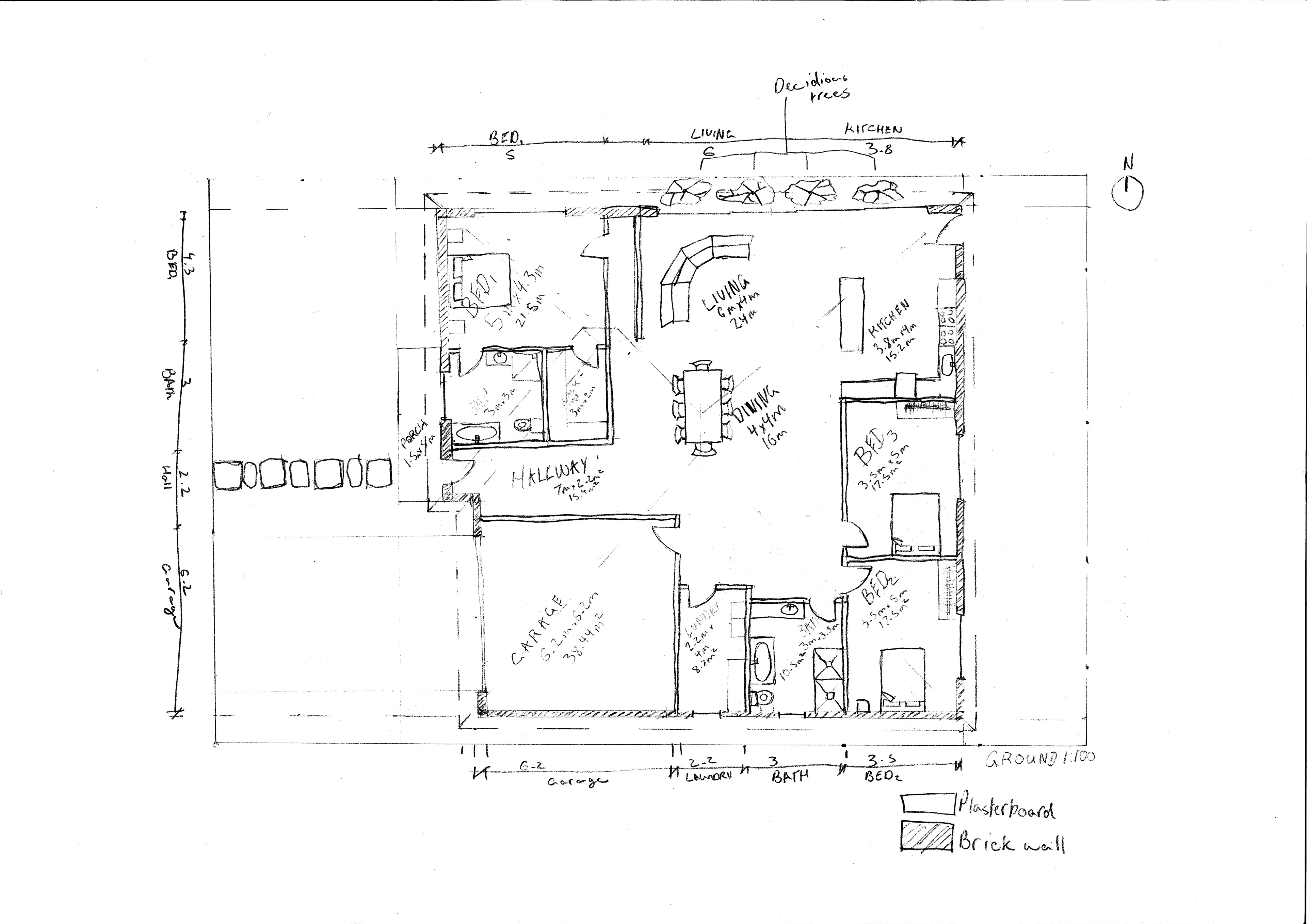
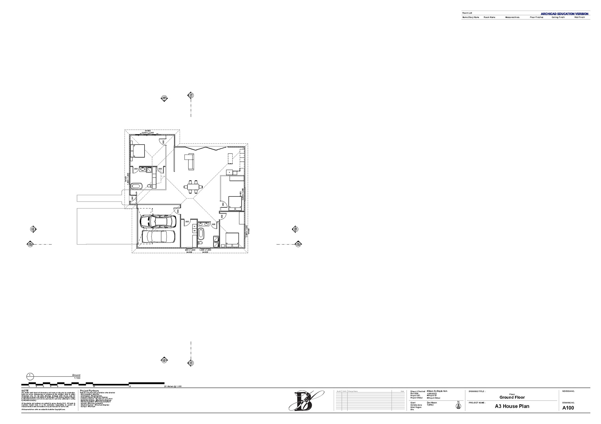
House Design
This project is a sustainable house design for a Sydney suburban area. It explores the use of sustainability techniques and is designed in order to minimise the use of electrical heating and cooling.
You may also like
2022
Dining Experience in Space
2021
Watch Packaging Design
2020
Stapler Design
↑
Back to Top